🛠️ משאבת סחרור מים חמים – תיקון ואבחון מקצועי בבניינים משותפים
בכל בניין משותף יש רגע שמבעיר את הקווים – כשהדיירים מתלוננים שאין מים חמים.
המערכת הסולארית אמורה לספק מים רותחים גם בשמש חורפית, אבל בפועל זה לא תמיד קורה.
למה? כי המפתח האמיתי לתפקוד המערכת הוא משאבת הסחרור – היא זו שמכריחה את המים החמים לרדת מהגג אל ה־דוודים שבדירות.
בעמוד הזה תגלו איך מאבחנים נכון, איך מזהים תקלות, ואיך מחזירים את המערכת לתפקוד מלא – בלי ניסוי וטעייה, ובלי לבזבז את קופת הוועד.
💡 מה תמצאו כאן
• מה באמת גורם ל־מים פושרים ביום שמש
• ההבדל בין משאבת סחרור ל־משאבת הגברת לחץ
• למה משאבת סחרור לא עובדת למרות שהיא “פועלת”
• איך לבחור נכון בין זול ליקר – בלי ליפול בפח
• מה כוללת אחריות אמיתית
• אילו שאלות חכמות ועד בית חייב לשאול
• ואיך החלטה אחת נכונה מחזירה מים חמים ושקט לכל הדיירים
💧 משאבת סחרור מים חמים – הסיבה למים פושרים ביום שמש
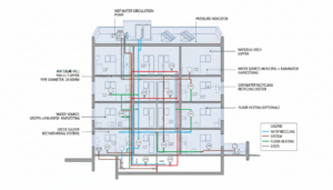
ארצנו שזופת השמש מעניקה לנו חינם מים חמים בשפע רוב ימות השנה. זה מתחיל בגג הבניין:
קולטי השמש, החשופים לקרני השמש הלוהטות, ממירים את אנרגיית האור לחום גבוה שמחמם את המים שבתוכם.
אבל כאן זו רק ההתחלה. כדי שהחום הזה יגיע באמת לדיירים, נדרשת מערכת הצנרת שמעבירה את המים החמים מהקולטים למטה – אל דודי השמש שבדירות.
הבעיה? כאן נכנסת הפיזיקה הפשוטה:
🔼 מים חמים שואפים תמיד לעלות למעלה.
דווקא כאן צריך לגרום להם לרדת.
כדי לכפות עליהם לנוע נגד הטבע שלהם, פועלת מערכת הסחרור:
• משאבת סחרור – הכוח שמושך את המים החמים מהגג אל הדוודים.
• תרמוסטט דיפרנציאלי – מחליט מתי להפעיל את המשאבה.
• מיכל התפשטות ושאר רכיבים נלווים – שומרים על איזון ולחץ תקין.
בלי המשאבה הזו – החום פשוט נתקע למעלה בגג, והדיירים מוצאים את עצמם מדליקים בוילר גם בחודשי הקיץ הלוהטים.
🔑 המסר: משאבת הסחרור היא החוליה שמחברת בין החום שבגג לבין המים החמים בדירות. מערכת סחרור לא תקינה = מערכת סולארית לא מתפקדת.
💡 ההבדל בין משאבות סחרור מים חמים לבין משאבות הגברת לחץ
בבניין משותף כמעט תמיד פועלת חברה שמתחזקת את משאבות הגברת הלחץ. ולכן מפתה לפנות אליה גם כשיש בעיה במים החמים. אבל כאן טמונה הטעות – מדובר בשתי מערכות שונות לגמרי, שמצריכות מומחיות אחרת.
- משאבת הגברת לחץ – מטפלת במערכות פתוחות. היא בנויה “לדחוף” מים כנגד התנגדויות: קומה גבוהה, מאגר עליון או צנרת עם נפילת לחץ. אם לא מספיקה – פשוט מתקינים משאבה חזקה יותר, והמים עולים.
• משאבת סחרור – פועלת במערכת סגורה. אותם מים מסתובבים בלופ בין קולטי השמש לדודי השמש. היא עדינה, שקטה, חסכונית בחשמל ותפקידה לשמור על זרימה רציפה. אם יש חסימות או התנגדויות (אבנית, כיסי אוויר, שסתומים תקולים) – משאבה חזקה יותר לא תפתור את הבעיה, אלא רק תגביר לחצים ותגרום לנזק.
📍 אפשר לחשוב על זה כך:
בכביש מלא בורות ומחסומים, רכב חדש וחזק יותר לא ישפר את הדרך. מה שצריך זה לתקן את הכביש – לא להחליף את הרכב.
🔑 המסר לוועד:
משאבת סחרור דורשת גישה עדינה ומדויקת. לא כל מי שמבין במשאבות לחץ יודע לטפל בה – זו התמחות אחרת לגמרי.
⚖️ משאבת סחרור לא עובדת למרות שנראית פעילה – למה זה קורה?
תחשבו על מאוורר: המנוע פועל, הכנפיים מסתובבות – אבל אם סוגרים את החלון שמאחוריו, זרימת האוויר כמעט נעלמת. המאוורר עדיין “עובד”, אבל בפועל לא מספק תוצאה.
כך בדיוק גם במשאבת סחרור:
• המנוע החשמלי פועל, מתחמם ולעיתים גם משמיע רעש.
• אבל אם יש אבנית בצנרת, כיסי אוויר או שסתומים תקולים – המאיץ לא מצליח לשאוב את המים קדימה, והמערכת לא מקבלת זרימה אמיתית.
📉 איך זה מתבטא בדירות:
• בקומות העליונות – מים רותחים, לפעמים אפילו יותר מדי.
• בקומות התחתונות – מים פושרים, שנגמרים מהר.
• לוועד – תלונות חוזרות, לחץ מהדיירים, ותחושת תסכול.
💡 טיפ לוועד:
אל תבדקו את המערכת רק בקומות הגבוהות – שם לרוב יש מים חמים. בדקו דווקא בקומה הראשונה: אם שם המים פושרים או לא מחזיקים מעמד, סימן שהמערכת לא מתפקדת כראוי.
🔑 המסר לוועד:
פעולה חשמלית ≠ עבודה הידראולית. ברוב המקרים זו לא תקלה נקודתית במשאבה עצמה – אלא בעיה מערכתית שדורשת בדיקה יסודית של תנאי הסחרור.
💰 בחירת משאבת סחרור – האם זולה או יוקרתית עדיפה?
כמעט כל ועד בית מתלבט: האם לבחור ב־משאבת סחרור זולה כדי לחסוך בקופה, או להשקיע ביוקרתית מתוך מחשבה שזה “יסגור את הפינה”. שתי הבחירות טבעיות – לפעמים התקציב לוחץ, ולפעמים האחריות דוחפת לבחור במוצר הכי יוקרתי.
אבל רגע לפני ההחלטה – כדאי לשאול:
❓ אם הייתם יודעים שגם המשאבה היקרה ביותר לא תפתור את הבעיה, האם הייתם נכנסים לזה בצורה הזו?
🔎 זה הלב של העניין:
מה שקובע את התוצאה הוא לא תג המחיר – אלא התאמת המשאבה למערכת ותקינות המערכת עצמה.
- משאבה פשוטה + מערכת מתוחזקת = מים חמים לכולם ושקט אמיתי.
• משאבה יוקרתית במערכת לא מאוזנת = המשך תלונות, גם אם שילמתם אלפי שקלים.
ומה ההבדלים בפועל?
• יוקרתית – חיה 7–10 שנים, סלחנית יותר למצבים גבוליים.
• פשוטה – חיה 1–3 שנים, אך אם המערכת מתוחזקת – תספק את אותה תוצאה.
💵 טווחי מחירים 2025 (ללא התקנה):
• דירה בודדת – החל מ־1,090 ₪
• בניין עד 18 דירות – 1,450–2,270 ₪
• בניין עד 28 דירות – 2,240–2,950 ₪
• מערכות גדולות/מורכבות – מותאם אישית (משאבות אוגנים)
🔑 המסקנה:
המחיר משפיע על אורך החיים של המשאבה, אבל התאמתה למערכת היא מה שקובעת אם הדיירים יקבלו מים חמים או לא.
🧠 משאבות סחרור לא נשרפות סתם – ברוב המקרים התקלה בכלל לא במשאבה
מעל לשני עשורים של עבודה בשטח הראו לי דבר ברור: ברוב המקרים התקלה בסחרור לא קשורה למשאבה עצמה, אלא לתנאים במערכת שלא מאפשרים לה לעבוד בצורה תקינה.
📉 מה באמת מקצר את חיי המשאבה:
• אבנית וחסימות – מצרות את המעברים ומקטינות ספיקות.
• כיסי אוויר – שוברים את רצף הסחרור וגורמים למשאבה “להיאבק”.
• שסתומים לא תקינים או התקנה לא מדויקת – מוסיפים התנגדויות.
• מיכל התפשטות פגום – מעלה לחצים מיותרים ושוחק גם משאבה חדשה.
🔍 אנלוגיה:
גם רכב חדש לא יגיע במהירות אם ייסע על כביש שבור. הוא יגיע – אבל לאט יותר, עם בלאי מואץ ובטח לא בנוחות.
🔑 המסר לוועד: אם לא מטפלים בתנאים של המערכת, גם משאבה חדשה תישחק ותגרור תלונות חוזרות.
🧠 משאבה חדשה ≠ בעיות ישנות נעלמות
החלפתם משאבה? התחושה היא שהבעיה נפתרה. בפועל, לא פעם התלונות חוזרות – כי הבעיה לא הייתה במשאבה אלא במערכת.
📉 מה קורה כשמחליפים חלק בלי בדיקה כוללת:
• המים לא מתחלקים שווה בין הקומות.
• הדיירים ממשיכים להדליק בוילר, גם באמצע הקיץ.
• המשאבה החדשה נשחקת מהר – גם אם היא איכותית.
🔍 למה?
כי לא נבדקו תנאי המערכת: צנרת ישנה, חסימות או רכיבים כמו מיכל התפשטות שלא טופלו.
🔑 המסר לוועד: החלפת משאבה זו לא סוף פסוק. רק בדיקה מערכתית תחזיר מים חמים ושקט אמיתי.
🛡️ אחריות על משאבות סחרור מים חמים – מה חשוב לדעת
המילה “אחריות” מופיעה כמעט בכל הצעת מחיר, אבל יש פער גדול בין אחריות יבואן ל־אחריות מתקין.
- יבואן – לא יודע באילו תנאים המשאבה עבדה. פעמים רבות האחריות כרוכה בהמתנה לבדיקה, טפסים ואישורים. על הנייר יש אחריות – בשטח לא תמיד.
• מתקין מקצועי – נותן אחריות ישירה לוועד: המשאבה מוחלפת בחדשה, האחריות כוללת גם התקנה ותפקוד, ויש ביקורת אחרי ההתקנה.
💡 טיפ לוועד: בקשו שהאחריות תהיה של המתקין בלבד – ברורה, מוגדרת ומגובה בבדיקה בשטח.
🔑 המסר לוועד: אחריות אמיתית היא לא ניירת – היא מחויבות לתוצאה.
🧰 איך לבחור מתקין שלא ייעלם אחרי ההתקנה
לא מעט ועדי בתים נתקלו בזה: טכנאי שהגיע, התקין משאבה, קיבל תשלום – וכשחזרו התלונות, הוא נעלם.
איך מונעים את זה? בודקים מראש:
• התמחות יומיומית במערכות סולאריות.
• שקיפות מלאה – איזו משאבה מותקנת ומה כוללת האחריות.
• רישיון והסמכה מתאימים.
• המלצות רלוונטיות מבניינים דומים.
• התחייבות למעקב אחרי ההתקנה.
💡 טיפ לוועד: תשאלו ישירות – “מה נעשה אם בעוד שבועיים שוב יהיו מים פושרים?”
🔑 המסר לוועד: משאבה אפשר לקנות בכל חנות. מתקין אמין – זה מי שנשאר אתכם גם אחרי שהחשבון שולם.
❌ המחיר האמיתי של מערכת סחרור לא תקינה
כשמשאבת הסחרור לא מותאמת או כשהמערכת לא נבדקת – המחיר האמיתי מצטבר:
• 🌡️ טמפרטורת המים בקולטים עולה לקיצון.
• 🧩 האטמים נשחקים → נזילות בחיבורים.
• 🚰 הצנרת נחלשת ומתרכבת.
• 💡 הדיירים מדליקים בוילר לשווא → חשבון החשמל מתנפח.
🔑 המסר לוועד: מערכת סחרור לא תקינה פוגעת בכל הרכיבים, מחזירה את הבניין שוב לנקודת ההתחלה, ומרוקנת את קופת הוועד.
❓ השאלות החכמות שוועד חייב לשאול
- למה דווקא המשאבה הזו מתאימה לבניין שלנו?
• מה גרם לתקלה הקודמת – ואיך מונעים חזרה?
• האחריות – על החלק בלבד או גם על ההתקנה והתפקוד?
• מה נעשה אם בעוד שבועיים שוב יהיו מים פושרים?
• מה יקרה אם גם המשאבה החדשה תישרף?
• איזה ניסיון יש לך במערכות סולאריות משותפות?
• אפשר לשוחח עם ועדי בתים שעבדו איתך?
🔑 המסר לוועד: שאלות נכונות מראש משאירות את ההפתעות ליום ההולדת.
📢 מאחורי כל צעקה מסתתרת בקשה
הניצוץ שמצית מהומה בבניין משותף הוא לא המים הקרים עצמם – אלא הידיעה שהדייר לא יכול לפתור את הבעיה לבד, אלא תלוי בוועד הבית.
ברגע שאתם בוחרים נכון – לא רק שהמים חוזרים, אלא גם האמון.
כל טלפון שמתחיל בכעס, נגמר בהערכה לוועד שפעל באחריות.
☕ תחזוקה שנתית מסודרת – בעלות של פחות מכוס קפה לחודש לדייר
– מעניקה שקט אמיתי וחוסכת לוועד תיקוני פלסטר יקרים.
📈 החלטה אחת נכונה = מים חמים ושקט תפעולי
בכל רחבי הארץ, בניינים משותפים שהתמודדו עם מים פושרים ותקלות חוזרות – גילו שברגע שעוצרים לאבחון מקצועי, המערכת חוזרת לעבוד.
❝כשועד בית מקבל החלטה נכונה – לא רק המים חוזרים, גם האמון בין הדיירים.❞
👉 כנסו לראות מה נגרם מהחלטה אחת נכונה – ועדי בתים מספרים »




